베스트우드

본문 바로가기 주메뉴 바로가기 서브메뉴 바로가기

전체 카테고리

  • 고객센터
  • 입금계좌안내
  • 목재재적계산기
  • 참고사항

고객지원

home > 고객지원

고객지원

견적문의 드립니다.

김보섭 2025-10-15 09:10:12 조회수 195

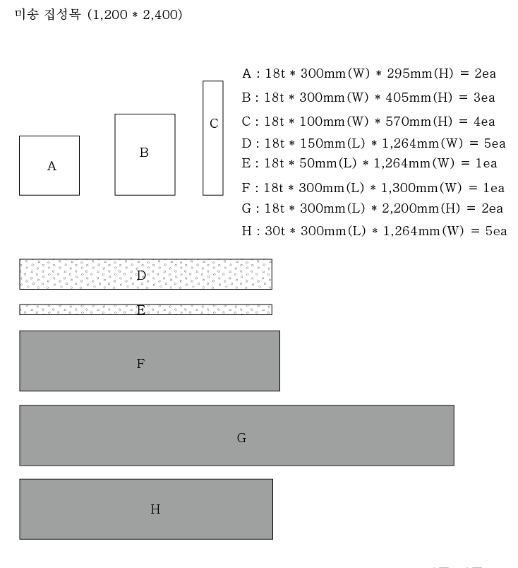
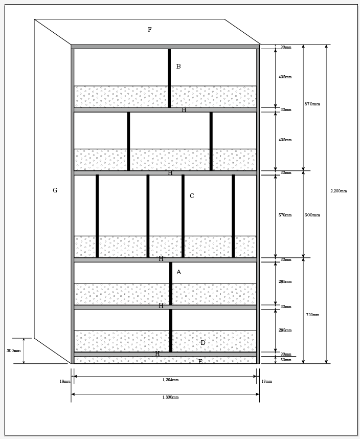
미송 집성목 견적 부탁드립니다. 

 

A : 18t * 300mm(W) * 295mm(H) = 2ea

B : 18t * 300mm(W) * 405mm(H) = 3ea

C : 18t * 100mm(W) * 570mm(H) = 4ea

D : 18t * 150mm(L) * 1,264mm(W) = 5ea

E : 18t * 50mm(L) * 1,264mm(W) = 1ea

F : 18t * 300mm(L) * 1,300mm(W) = 1ea

G : 18t * 300mm(L) * 2,200mm(H) = 2ea

H : 30t * 300mm(L) * 1,264mm(W) = 5ea 

  • 등록된 댓글이 없습니다.